Bodega Comercial de 411 m² Sobre Av Pacifico MM394

Av Pacífico El Rosedal CP. Ciudad de México

MXN$ 100,000.00
400m2 | 400m2
slide
slide
slide
slide
slide
slide
slide
slide
slide
slide
slide
thumb
thumb
thumb
thumb
thumb
thumb
thumb
thumb
thumb
thumb
thumb

Detalles

2026

Descripción

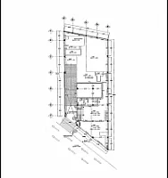
ASESORA MIRIAM MARTINEZ MM394 Bodega Comercial de 411 m2, se encuentra sobre Avenida Pacifico, En inmediaciones de Los Reyes Coyoacan, Cuenta con dos cortinas a pie de calle para venta al publico o para almacenaje, -segun sus necesidades-; Cuenta con acceso para Trailer con suficiente espacio para maniobra. En el primer Nivel cuenta con Mezzanine y una oficina. Excelente ubicacio, avenidas cercnas: Division del Norte, Miguel Angel de Quevedo, Calzada de Talpan y Av. Taxqueña.

Amenidades

No hay amenidades disponibles para esta propiedad

Compartir anuncio

Personalizar anuncio

Fotos visibles

Elige las fotos que quieres mostrar.